在2019年11月8日举行的“中国华西设计杯”第三届全国大学生“茅以升公益桥——小桥工程”设计大赛总决赛中,由重庆交通大学跨学科学生及跨学科指导教师组成的团队的设计作品“节桥”脱颖而出,以第一名的成绩荣获特等奖。
本文以“节桥”为例,从设计定位、设计理念、立意构思、结构设计、细部设计、成果呈现等方面,简要介绍“节桥”的设计方案,以探索桥梁设计创意的思路。
本次大赛依托于交通运输部直属机关党委和北京茅以升科技教育基金会发起的“交通发展连着你我他——茅以升公益桥——小桥工程”实施的爱心助力扶贫主题实践活动,旨在践行茅以升先生“先习后学,边习边学”的工程教育思想,以实际工程项目设计为载体,通过实践教育提高人才培养水平,培养青年公益精神,为交通扶贫汇聚青春力量。参照“第三届茅以升公益桥设计大赛桥位信息”,在前期实地调研的基础之上,经过讨论,选定了重庆市奉节县竹园镇无山村人行桥为本次参赛的依托工程。
一个设计的成败与否,设计定位是非常关键的。本次大赛的对象是贫困山区的公益桥,不能追求新、奇、怪,必须在简约中追求创意。因此我们在设计之初就考虑在最常规且造价相对较低的桥型中进行选型,以求尽可能低的工程造价。
有了明确的设计定位,我们确立了环境和谐、实用先行、施工便捷、简洁美观、生态环保的设计理念,并将之贯穿到设计始终。
奉节因“白帝城托孤”而得名,竹园以盛产竹而闻名。本方案以“节”为设计主题,以竹为设计元素,化桥为竹,既与山峦起伏、连绵不绝的环境特色融为一体,又与竹林婆娑、流水潺潺的田园意境相得益彰。同时还体现了竹——朴实无华、虚怀若谷、自强不息、高风亮节的精神内涵,以期达到形式与功能、环境与意境的融合统一(图1)。

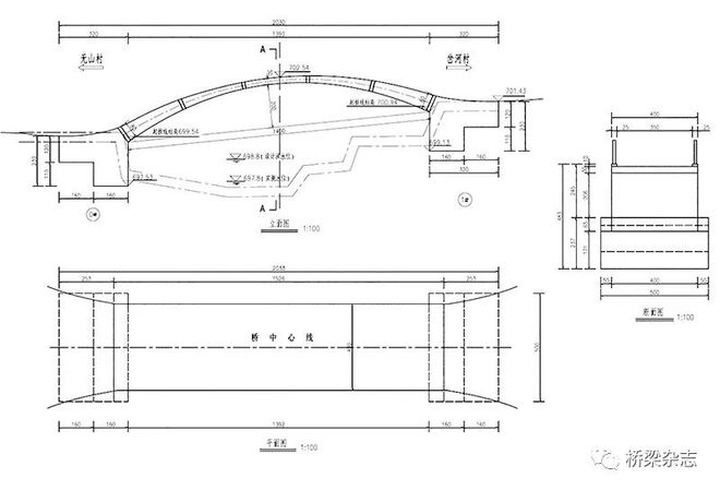
节桥结构设计为净跨径14m,净矢高2m,矢跨比1/7的不等高变截面钢筋混凝土拱桥,既增强桥下泄洪能力,又解决了桥位两端地势高差的过渡,同时又与山峦起伏的环境协调。平面设计中桥梁主体部分采用4m宽的直线形拱桥,仅在两端桥台部分做了曲线变化,形成了桥喇叭状开口,打破了呆板的形态。整个桥梁结构设计简单合理,造价低廉,施工便捷(图2)。

化桥为竹的设计思路贯穿到桥梁主体及细部构造设计之中。运用包豪斯现代设计理念,采用简约主义的设计手法,形式与功能高度统一,不做任何额外的装饰,简约而不简单。
桥身侧面几条浅浅的凹槽设计,使整个桥身化身为竹,远观宛若溪边弯垂下的竹梢一般,浑然天成(图3)。

栏杆采用向心设计,与桥身协调一致。扶手采用镀锌钢管,利用直径变化处理成竹节形态;竹节状的扶手不对称的自然延伸,宛若自然生长出来的竹子一般。扶手的“竹节”处嵌入太阳能LED灯管,解决夜间照明,尽可能减少后期运维成本(图4)。

桥面未做任何防水及铺装处理,仅在浇筑混凝土时采用木模压花形成竹节状纹理,既形成了表面肌理,又解决了防滑功能,实现了形式与功能的高度统一(图5)。

本方案成果完整,逻辑清晰。项目背景分析、前期调研报告、立意构思、结构选型、造型设计及细部设计、设计效果图、结构设计与计算、构造设计、造价预算、动画视频等部分的设计成果结构完整、逻辑关系清晰明了。设计文本、PPT汇报材料及答辩发言等各方面,与“朴实无华、简洁美观”设计理念保持一致,以浅绿色调为主,没有炫酷的过度表现,给人以耳目一新之感(图6)。

2017年以来,重庆交通大学主动服务交通强国战略,践行学科交叉、通专融合、校企协同的教育理念,发挥交通学科专业优势,围绕桥梁艺术、交通环境、城市品质提升等方面,率先在国内探索培养六位一体的“交通+艺术”复合跨界人才培养模式。通过这些年的实践,取得了显著的人才培养效果,扩大了业界的影响力,获得用人单位的好评。继2019年荣获世界大学生桥梁设计大赛双一等奖、“交通+艺术”新工科统合设计实验班入围第54届中国高等教育博览会“校企合作·双百计划”之后,又在本次大赛获得了双特等奖。
作为我国首批交通强国建设试点城市,重庆交通建设发展将更加注重品质提升,相关领域的新型人才需求也更加迫切,“交通+艺术”复合跨界人才培养,将具有更为广阔的发展前景,助力国家交通强国战略。

《桥梁》杂志于2004年创刊,以促进科技发展,传承桥梁文化为办刊宗旨。以关注中外桥梁史上值得借鉴的案例、共享中外桥梁史上前沿的创新成果、结识中外桥梁史上久负盛名的大师、浏览中外桥梁史上蕴涵的悠久文化为办刊特色。杂志面向国内外发行,提供国内外桥梁界最新的学术动态及实践成果,以独特的视角报道桥梁工程设计、施工、科研、监理、管理、文化等内容,全方位反映桥梁科学技术创新,展示桥梁美学文化。设有关注、专题、亮见、资讯、技术、人物、文化、会客厅等栏目,集科技与文化为一体,具有可读性、实用性及收藏价值。

特别声明:以上内容(如有图片或视频亦包括在内)为自媒体平台“网易号”用户上传并发布,本平台仅提供信息存储服务。
20多公里不能变道,天府机场直通道不“直通”还“挡道”?四川省交通厅:近期正在研究
刚刚,央行宣布:下调25!100万元房贷30年,月供累积减少5.1万元
《编码物候》展览开幕 北京时代美术馆以科学艺术解读数字与生物交织的宇宙节律
《编码物候》展览开幕 北京时代美术馆以科学艺术解读数字与生物交织的宇宙节律
Copyright © 2024 凯发护栏金属制品有限公司 版权所有