优势:独立电梯入户四房起步,纯粹改善,全程均采用LDKG-一体化设计,南向双主卧套房,甄选建材,高品牌精装三大件

产品方面,拟建11幢8-25F住宅,总户数仅376户;包含4幢8-10F洋房,3幢15-17F小高层,4幢25F高层。部分楼栋一层局部架空,主出入口设置在长江路上。上华璟庭售楼处电话:【售楼热线】✔✔✔

上华璟庭售楼处电话:【售楼热线】✔✔✔户型面积段同步曝光,主力建面约145/176/220m²三大户型,装标2000-4000元/m²,可见定位纯改善社区。上华璟庭售楼处电话:【售楼热线】✔✔✔上华璟庭售楼处电话:【售楼热线】✔✔✔
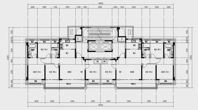
目测户型约145m²,4房2卫设计,四开间朝南,南向面宽约15.2米,经典大横厅设计,横厅长约5.4米。
南向双联阳台,LDKB一体化设计,空间感十足;主卧套房设计,设有独立卫浴。

上华璟庭售楼处电话:【售楼热线】✔✔✔地块南部需设置建筑面积不小于24700㎡的商务;
上华璟庭售楼处电话:【售楼热线】✔✔✔地上一层地上二层须设置计容建筑面积不小于1800㎡且不大于2000㎡的商业,不得设置批发市场用地和旅馆用地。

该地块体量不大,位置核心、配套齐全,又有改善最爱低密洋房,地缘可以冲。上华璟庭售楼处电话:【售楼热线】✔✔✔
未来售价的话,周边新房在售苏高新上华璟庭均价3.7万/㎡,有一定价格参考意义。
先来回顾下拿地情况——上华璟庭售楼处电线月土拍中,腾聪置业以总价约11.91亿竞得,成交楼面价约13029元/㎡,溢价率0%。
地块建设单位为苏州新晨捷置地有限公司,其中腾聪置业占股51%,苏高新占股49%。

3号线就在家门口;西边何山公园;往南绿宝、金鹰、龙湖天街;学校也不缺,自住便利度高!


项目规划是洋房+小高层的组合,容积率非常的低,一共只有12幢293户,合围的布局也能保证更好的光照。上华璟庭售楼处电话:【售楼热线】✔✔✔


上华璟庭售楼处电话:【售楼热线】✔✔✔项目由日清设计和山水比德联袂设计,高级灰铝板+大面积玻璃,形成精致的秩序感,棱镜屋顶极具辨识度。上华璟庭售楼处电话:【售楼热线】✔✔✔
纵观苏州置业版图,繁华与诗意兼备的狮山片区,历来是高端改善的关注热点,高阶住宅在此汇聚,高净值人群于此瞩目。上华璟庭作为狮山-枫桥板块“断供”多年后难得的优质宅地,其关注度不言而喻。


旗舰商业:绿宝广场、龙湖天街、金鹰商业广场、美罗新区店、泉屋百货、大润发港龙店、IF MALL。
便捷交通:距离轨道交通3号线米,步行即达;同时西津桥站也是8号线起始站(在建中),预计于2024年开通初期运营。(信息来源:苏州发布)
洞察时代所需,苏高新地产30余载深耕,以经年积淀,开创迭代高端“璟”系,精研“璟”系开篇作品——上华璟庭。
上华璟庭融合枫津河景,让社区与城市界面交融共生。整体容积率为1.64,规划为7-10F纯洋房以及17F高层,成就大狮山内难得的纯粹低密、纵横舒阔的高级居住感。仅此293席纯粹圈层大宅,成就峯层人物圈层共识,礼致城市高端鉴赏力。上华璟庭售楼处电话:【售楼热线】✔✔✔


秉承“删繁就简,溯本清源”的建筑哲学,以共鸣全球审美品位的立面范本,构建现代建筑语汇,演绎城市天际高阶封面。
几何之美丨立面着重刻画壁柱与窗槛墙的比例及虚实对比,以层间关系勾勒几何美学。
色彩之美丨灰色铝板的金属纹理与玻璃表面的光泽感,于制约中形成精致秩序感。上华璟庭售楼处电话:【售楼热线】✔✔✔
对标SCDA在新加坡MARQ豪宅的国际作品风格,于作品中倾注同频世界的前沿理念与匠心情怀,打造“三轴九园”空间,成就超强介入式全龄景观。上华璟庭售楼处电话:【售楼热线】✔✔✔
会客丨“社交剧场、尘林至境、艺术花园、岛屿归心、邂逅花园、林语庭院、都会剧场”七大主题空间、7大架空层“泛会所”
亲子丨“森林剧场”、“童梦剧场”两大主题儿童乐园,内置乐趣沙坑、跳跳格等设施


建筑面积约165-248㎡人文大平层,最大超20米面宽、阔境轴线、双套房设计(差异户型除外),同时甄选精装品牌,开启同频国际的智能化家居生活。上华璟庭售楼处电话:【售楼热线】✔✔✔
新永物业,由苏高新地产携手中国物业百强永升生活服务集团共同打造,致力于打造智慧服务首选品牌。已通过ISO9001:2015质量管理体系、ISO14001:2015环境管理体系及GB/T服务标准、ISO45001:2018职业健康安全管理体系三大体系认证。以全生命周期、全生活场景、全龄社区三大维度服务体系,致力打造智慧服务首选品牌。


生活在狮山,人们真正需要一套怎样的房子?当我们置身狂飙突进、高层林立的狮山改善圈,洋房无疑是一种更高阶、更难得的生活方式。
而随着核心土地的愈加珍贵,洋房市场也表现出供不应求的态势,据统计,2023年苏州洋房的供求比仅为0.78,而纯洋房社区的供应也仅占6%,洋房供求比长期处低位,这些数据都显示出了洋房产品稀缺,但需求却处在旺盛状态。2023年洋房均价同比上涨12%。(数据来源:克而瑞苏州房产测评)上华璟庭售楼处电话:【售楼热线】✔✔✔

当越来越多的人钟爱洋房,市面上各种标准不一的“洋房”不断涌现,洋房标准及品质正被不断降级。真正的洋房,楼层一般不应超过10层,社区容积率不超过1.8。此外,优秀的社区规划与卓越的空间打造也是重要的参考因素。而今「苏高新·上华璟庭」作为狮山难得的洋房社区,给出了更加纯粹的狮山洋房生活见地。

上华璟庭作为狮山目前拥有真洋房的楼盘,容积率仅约1.64,由8栋7-10F纯洋房以及4栋17F小高层组成。低容积率的先天优势,使得社区楼间距更加宽敞,居住密度更低,人均享受面积更大,因而舒适度也更高。在低容积率表象之外,洋房社区所带来的,是更加让居者受益的生活价值。

在建筑面积约165-248㎡的低密洋房之中,上华璟庭贴心考究每位家庭成员所需,以四房起步,为纯粹改善奠定了基调。全系产品均采用LDKG一体化设计,为空间赋予自由舒展感,同时南向双套房的设计则更加注重主人私域的打造,为多代人敬呈纯粹游心的场域,赋予身心的愉悦。


无论是建筑的甄选材质,还是空间6大奢居系统,均体现出上华璟庭的用心。全屋高配大金中央空调、威能地暖、松下新风三大件,更有全套博世厨房电器、杜拉维特洁具、汉斯格雅五金等。客厅岩板背景墙、主卧软包背景墙、悬浮吊顶等多重精装细节,所有精致皆源自于对奢适生活的不懈追求。上华璟庭售楼处电话:【售楼热线】✔✔✔
Copyright © 2024 凯发护栏金属制品有限公司 版权所有