就像开启了一场理想生活的奇妙之旅。项目占位 “科创 + 人文 + 生态” 城市单元示范板块,东接 G60 科创走廊人工智能产业基地,南邻松江大学城,北靠佘山国家旅游度假区。
交通出行便捷,西侧嘉松公路、北侧沈砖公路匝道(规划),快速连接城市各处。周边教育资源丰富,多所优质学校环绕。社区内部打造近 1900㎡配套用房,涵盖健身房、瑜伽室、泳池等,满足多元生活需求。产品丰富,高层与叠加随心选,高层装修交付,叠加毛坯交付,以卓越品质,为你构筑理想家园,开启美好生活新篇。


✔✔(在建中)双地铁房上海西南新一代高品质封面之作华发·海上都荟二期建面约101㎡高层三房建面约90-136㎡叠加均价49100元/㎡,总价401万起!开盘热销中! 线上接待预约中!!


✔✔首开当月劲销7成,约200余套房源名花有主,总销金额高达约11.5亿
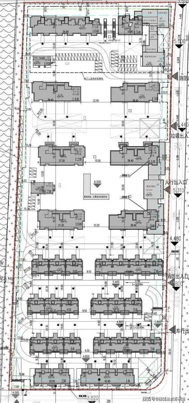
✔✔,上海二批次土拍,华发以总价706310万元成交松江区洞泾镇SJS30006单元04-04、05-01、05-05号地块,地块出让面积130113.2㎡,容积率2.1,溢价率10%,楼板价25850元/㎡,房地联动价50000元/㎡。项目
✔✔四至范围,东至百尧村路、南至联营村路、西至04-03地块、北至城桂路。根据土地转让合同显示,
✔✔的规划住宅套数下限为942套05-01地块的规划住宅套数下限为1055套05-05地块的规划住宅套数下限为735套总体量超过了2700套,是个超大体量盘。

✔✔设计方案显示,拟建56幢4-18F的住宅、保障房以及其他配套用房,其产品为高层&洋房&叠加的组合。


✔✔于东面与南面,根据设计方案显示,有8栋18层高高楼,6栋6层楼栋以及6栋4层高楼栋。18层高度约为57.2m,6层为18.55m,4层为12.55m。

✔✔门位于西面与东南角,根据设计方案显示,有9栋18层高高楼,6栋6层楼栋以及5栋4层高楼栋。18层高度约为57.2m,6层为18.55m,4层为12.55m。

✔✔门位于西南角与东面,根据设计方案显示,有一栋保障房、7栋18层高高楼、6栋6层楼栋以及2栋4层高楼栋。18层高度约为57.2m,6层为18.55m,4层为12.55m,保障房也为18层,高度为57.2m。


✔✔(在建中)双地铁房,上海西南新一代高品质封面之作,华发·海上都荟二期,建面约101㎡高层三房,建面约90-136㎡叠加,均价49100元/㎡,总价401万起!开盘热销中!
此前实景示范区已惊艳亮相!据悉项目社区配套、下沉式庭院、会所、入户大堂、地下车库等都做了实景展示,项目售楼处未来交付后也将规划为邻里空间配套!满屏所见即所得,让业主看得舒心买得放心~

,项目主入口做了环岛式酒店大堂设计,风雨回廊在天气炎热或者下雨天时让人更舒适;地下车库沿袭市场流行的网红星空顶设计,兼具美观度和实用性,头顶是璀璨的星空顶,绚丽氛围直接拉满;

也已惊喜亮相,所见即所得,此外会所还配备有恒温泳池,不用出小区,在家门口就可以游泳健身;
项目邀请朗道国际景观设计倾力打造,众所周知的上海融创滨江壹号院、上海万科中兴路一号、上海万科翡翠滨江都是其代表作。

的概念,创造开放、生活活力的城市街角空间。同时内向造景,打造三大组团景观、各类活动休闲场地,可满足全年龄段生活空间需求。


对于城市精英们而言,结束一整天的工作,步入高颜值、低密度的墅质社区之中,身心都能不由自主的休憩、放松下来。不仅产品优秀,
华发物业是全国最早一批通过ISO9001国际质量管理体系认证的国家一级资质物业管理企业,目前在管项目200余个,面积超4000万平米,荣膺“2021中国物业服务百强企业TOP21”
1.房地产房地产又称不动产,是房产和地产的总称,具体地是指土地及其附着物。房产总是以地产联结为一体的,具有整体性和不可分割性
是指产权人对房屋的所有权和对该房屋所占用土地使用权。具体内容是产权人对房地产的占有、使用、收益和依法处分的权利。
是指土地使用权拥有者对土地使用的权限,包括开发权、收益权、处置权。政府以拍卖、招标、协议的方式,将国有土地使用权在一定年限内出让给土地使用者。土地使用权期满后,如该土地用途符合当时城市规划要求的,土地使用者可申请续用,经批准并补清地价后可以继续使用。
一级市场是指国家土地管理部门(市国土管理局)按土地供应计划,采用协议、招标、拍卖的方式,以土地使用合同的形式,将土地使用权以一定的年限、规定的用途及一定的价格出让给房地产发展商或其他用地者的市场。
二级市场是指房地产发展商根据土地使用合同的要求将建好的房屋连同相应的土地使用权转让给单位和个人的市场。
三级市场是指单位、个人之间的房地产权转让、抵押、租赁的市场,它是在二级市场基础上的第二次或多次转让房地产交易活动的市场。
土地按其使用性质划分为:居住、商业、工业、仓储、综合用地、公共设施及自由集资、微利房用地。
代表国家行使土地所有者的权利,以及对房地产市场、房地产行业管理的政府部门。
是专门办理房地产初始登记、转移登记、抵押登记、变更、继承、赠与等手续的部门。
是指发展商以市场地价取得土地使用权进行开发建设并经国土局批准在市场上流通的房地产,它是可领独立房产证并可转让、出租、继承、抵押、赠与及交换的房地产。

总建筑面积:是指各层建筑面积的总和。底层建设按外墙墙角以上的外围水平面积计算,二层及二层以上按外墙外围水平面积计算。
建筑面积:是指住宅的建筑面积是指建筑物外墙外围所围成空间的水平面积。高层住宅的建筑面积,则是各层建筑面积之和。建筑面积包含了房屋居住的可用面积、墙体柱体占地面积、楼梯走道面积、其他公摊面积等。
使用面积:是指住宅的使用面积,指住宅各层平面中直接供住户生活使用的净面积之和。计算使用面积时有一些特殊规定:跃层式住宅中的户内楼梯按自然层数的面积总和计入使用面积;内墙面装修厚度也计入使用面积。
公用面积:商业的公用面积是指住宅内为住户出入方便、正常交往、保障生活所设置的公共走廊、楼梯、电梯间、水箱间等所占面积的总和。开发商在出售商品房时计算的建筑面积存在公共面积的分摊问题。
套内面积:是指俗称“地砖面积”。它是在实用面积的基础上扣除了柱体、墙体等占用空间的建筑物后的空间的概念。
又叫“宗地图”,是按一定比例尺制作的用以标示一宗地的用地位置、界线和面积的地形平面图。它由政府土地管理部门颁发给土地使用权受让者,受让者只能在红线范围内施工建房。
宗地图是土地使用合同书附图及房地产登记卡附图。它反映一宗地的基本情况。包括:宗地权属界线、界址点位置、宗地内建筑物位置与性质,与相邻宗地的关系等。证书附图即房地产证后面的附图,是房地产证的重要组成部分,主要反映权利人拥有的房地产情况及房地产所在宗地情况。
按规定房屋未建好之前出售均要办理此证,发展商将有关资料送到国土局申请,批准后方可预售楼花。
是由政府有关部门统一编制,用以明确买卖双方权利和义务的协议,所有的商品房销售都必须签订此合同。
是明确房地产抵押贷款中双方当事人权利和义务关系,由银行、业主和发展商三方签订。
是指购房者购买楼房时与银行达成抵押贷款的一种经济行为,业主先付一部分楼款,余款由银行代购房者支付,购房者的楼房所有权将抵押在银行,购房者将分期偿还银行的贷款和利息。
即楼宇预售。房地产经营者获取了建设土地,按政府批准的建筑施工图纸施工,且投入开发的资金已达到投资总额的三分之二(用地价款除外),便可向长春市房地产产权登记处申请和办理楼宇预售登记,经批准后方可预售。
是指与实际房屋的结构相同,但装修标准按发展商的售楼书而定的房间。示范单位与样板房的装修有区别,目的是为提供给客户做装修参考。
是房地产管理市场化的一种综合性经营方式,分为维护性管理和经营性管理两类。维护性物业管理的职能,主要为高层与多层住宅、综合写字楼、标准工业厂房等楼宇及机电设备保养维修、治安、消防、环境卫生及其他服务为业主提供良好的工作和居住环境。经营性物业管理除具有维护性管理职能外,还通过对物业出租经营达到回收投资和获取利润的目的。
就是房地产估价师根据房地产的有关信息、数据,选择合适的估价方法,按照一定的估价程序,最后确定物业的价格和价值的过程。评估的主要方法有:1、市场比较法;2、收益还原法;3、剩余法;4、成本法。
是付款人将款项交存银行,由银行签发给他凭此可以办理转帐结算或支取现金的票据。有效期为一个月。
是汇款人将款项交存当地银行,由银行签发给汇款人持往异地办理转帐结算或支取现金的票据。有效期为一个月。
是银行的存款人签发给受款人办理转帐或委托开户银行将款项支付给受款人的票据。有效期为十天。
确权是依照法律、政策的规定,经过房地产申报、权属调查、地籍勘丈、审核批准、登记注册、发放证书等登记规定程序,确认某一房地产的所有权、使用权的隶属关系和他项权利。
房地产权属调查包括:审查土地来源是否合法、占地是否超出规定的范围;审查建筑物有没有加层、超面积、改结构、改用途等情况;确认房地产的权利人、权利性质、权属来源、取得时间、使用年限、权利状况、变化情况和用途、价值、等级、座落等。
,上海二批次土拍,华发以总价706310万元成交松江区洞泾镇SJS30006单元04-04、05-01、05-05号地块,地块出让面积130113.2㎡,容积率2.1,溢价率10%,楼板价25850元/㎡,房地联动价50000元/㎡。项目售楼处电话☎:
四至范围,东至百尧村路、南至联营村路、西至04-03地块、北至城桂路。根据土地转让合同显示,
的规划住宅套数下限为942套05-01地块的规划住宅套数下限为1055套05-05地块的规划住宅套数下限为735套总体量超过了2700套,是个超大体量盘。

设计方案显示,拟建56幢4-18F的住宅、保障房以及其他配套用房,其产品为高层&洋房&叠加的组合。


于东面与南面,根据设计方案显示,有8栋18层高高楼,6栋6层楼栋以及6栋4层高楼栋。18层高度约为57.2m,6层为18.55m,4层为12.55m。

门位于西面与东南角,根据设计方案显示,有9栋18层高高楼,6栋6层楼栋以及5栋4层高楼栋。18层高度约为57.2m,6层为18.55m,4层为12.55m。

门位于西南角与东面,根据设计方案显示,有一栋保障房、7栋18层高高楼、6栋6层楼栋以及2栋4层高楼栋。18层高度约为57.2m,6层为18.55m,4层为12.55m,保障房也为18层,高度为57.2m。


(在建中)双地铁房,上海西南新一代高品质封面之作,华发·海上都荟二期,建面约101㎡高层三房,建面约90-136㎡叠加,均价49100元/㎡,总价401万起!开盘热销中!户型图赏鉴
项目售楼处未来交付后也将规划为邻里空间配套!满屏所见即所得,让业主看得舒心买得放心~

,风雨回廊在天气炎热或者下雨天时让人更舒适;地下车库沿袭市场流行的网红星空顶设计,兼具美观度和实用性,头顶是璀璨的星空顶,绚丽氛围直接拉满;
项目邀请朗道国际景观设计倾力打造,众所周知的上海融创滨江壹号院、上海万科中兴路一号、上海万科翡翠滨江都是其代表作。

的概念,创造开放、生活活力的城市街角空间。同时内向造景,打造三大组团景观、各类活动休闲场地,可满足全年龄段生活空间需求。


对于城市精英们而言,结束一整天的工作,步入高颜值、低密度的墅质社区之中,身心都能不由自主的休憩、放松下来。不仅产品优秀,华发物业的口碑已经在业主圈内颇受好评!保障业主们在后续居住中拥有更好的体验!
华发物业是全国最早一批通过ISO9001国际质量管理体系认证的国家一级资质物业管理企业,目前
房地产又称不动产,是房产和地产的总称,具体地是指土地及其附着物。房产总是以地产联结为一体的,具有整体性和不可分割性2.房地产产权
是指产权人对房屋的所有权和对该房屋所占用土地使用权。具体内容是产权人对房地产的占有、使用、收益和依法处分的权利。
是指土地使用权拥有者对土地使用的权限,包括开发权、收益权、处置权。政府以拍卖、招标、协议的方式,将国有土地使用权在一定年限内出让给土地使用者。土地使用权期满后,如该土地用途符合当时城市规划要求的,土地使用者可申请续用,经批准并补清地价后可以继续使用。
一级市场是指国家土地管理部门(市国土管理局)按土地供应计划,采用协议、招标、拍卖的方式,以土地使用合同的形式,将土地使用权以一定的年限、规定的用途及一定的价格出让给房地产发展商或其他用地者的市场。
二级市场是指房地产发展商根据土地使用合同的要求将建好的房屋连同相应的土地使用权转让给单位和个人的市场。
三级市场是指单位、个人之间的房地产权转让、抵押、租赁的市场,它是在二级市场基础上的第二次或多次转让房地产交易活动的市场。
土地按其使用性质划分为:居住、商业、工业、仓储、综合用地、公共设施及自由集资、微利房用地。
代表国家行使土地所有者的权利,以及对房地产市场、房地产行业管理的政府部门。
是专门办理房地产初始登记、转移登记、抵押登记、变更、继承、赠与等手续的部门。
是指发展商以市场地价取得土地使用权进行开发建设并经国土局批准在市场上流通的房地产,它是可领独立房产证并可转让、出租、继承、抵押、赠与及交换的房地产。

总建筑面积:是指各层建筑面积的总和。底层建设按外墙墙角以上的外围水平面积计算,二层及二层以上按外墙外围水平面积计算。建筑面积:是指住宅的建筑面积是指建筑物外墙外围所围成空间的水平面积。高层住宅的建筑面积,则是各层建筑面积之和。建筑面积包含了房屋居住的可用面积、墙体柱体占地面积、楼梯走道面积、其他公摊面积等。
使用面积:是指住宅的使用面积,指住宅各层平面中直接供住户生活使用的净面积之和。计算使用面积时有一些特殊规定:跃层式住宅中的户内楼梯按自然层数的面积总和计入使用面积;内墙面装修厚度也计入使用面积。
公用面积:商业的公用面积是指住宅内为住户出入方便、正常交往、保障生活所设置的公共走廊、楼梯、电梯间、水箱间等所占面积的总和。开发商在出售商品房时计算的建筑面积存在公共面积的分摊问题。
套内面积:是指俗称“地砖面积”。它是在实用面积的基础上扣除了柱体、墙体等占用空间的建筑物后的空间的概念。
又叫“宗地图”,是按一定比例尺制作的用以标示一宗地的用地位置、界线和面积的地形平面图。它由政府土地管理部门颁发给土地使用权受让者,受让者只能在红线范围内施工建房。
宗地图是土地使用合同书附图及房地产登记卡附图。它反映一宗地的基本情况。包括:宗地权属界线、界址点位置、宗地内建筑物位置与性质,与相邻宗地的关系等。证书附图即房地产证后面的附图,是房地产证的重要组成部分,主要反映权利人拥有的房地产情况及房地产所在宗地情况。
按规定房屋未建好之前出售均要办理此证,发展商将有关资料送到国土局申请,批准后方可预售楼花。
是由政府有关部门统一编制,用以明确买卖双方权利和义务的协议,所有的商品房销售都必须签订此合同。
是明确房地产抵押贷款中双方当事人权利和义务关系,由银行、业主和发展商三方签订。
是指购房者购买楼房时与银行达成抵押贷款的一种经济行为,业主先付一部分楼款,余款由银行代购房者支付,购房者的楼房所有权将抵押在银行,购房者将分期偿还银行的贷款和利息。
即楼宇预售。房地产经营者获取了建设土地,按政府批准的建筑施工图纸施工,且投入开发的资金已达到投资总额的三分之二(用地价款除外),便可向长春市房地产产权登记处申请和办理楼宇预售登记,经批准后方可预售。
是指与实际房屋的结构相同,但装修标准按发展商的售楼书而定的房间。示范单位与样板房的装修有区别,目的是为提供给客户做装修参考。
是房地产管理市场化的一种综合性经营方式,分为维护性管理和经营性管理两类。维护性物业管理的职能,主要为高层与多层住宅、综合写字楼、标准工业厂房等楼宇及机电设备保养维修、治安、消防、环境卫生及其他服务为业主提供良好的工作和居住环境。经营性物业管理除具有维护性管理职能外,还通过对物业出租经营达到回收投资和获取利润的目的。
就是房地产估价师根据房地产的有关信息、数据,选择合适的估价方法,按照一定的估价程序,最后确定物业的价格和价值的过程。评估的主要方法有:1、市场比较法;2、收益还原法;3、剩余法;4、成本法。
是付款人将款项交存银行,由银行签发给他凭此可以办理转帐结算或支取现金的票据。有效期为一个月。
是汇款人将款项交存当地银行,由银行签发给汇款人持往异地办理转帐结算或支取现金的票据。有效期为一个月。
是银行的存款人签发给受款人办理转帐或委托开户银行将款项支付给受款人的票据。有效期为十天。
确权是依照法律、政策的规定,经过房地产申报、权属调查、地籍勘丈、审核批准、登记注册、发放证书等登记规定程序,确认某一房地产的所有权、使用权的隶属关系和他项权利。
房地产权属调查包括:审查土地来源是否合法、占地是否超出规定的范围;审查建筑物有没有加层、超面积、改结构、改用途等情况;确认房地产的权利人、权利性质、权属来源、取得时间、使用年限、权利状况、变化情况和用途、价值、等级、座落等。
特别声明:以上内容(如有图片或视频亦包括在内)为自媒体平台“网易号”用户上传并发布,本平台仅提供信息存储服务。
特朗普卖天价移民“金卡”:500万美元一张,期望卖1000万张还清36万亿美国国债
太阳5人20+加时惜败灰熊 杜兰特26+8+7连丢绝平三分莫兰特29+8
《编码物候》展览开幕 北京时代美术馆以科学艺术解读数字与生物交织的宇宙节律
妈妈每天为女儿“花样”扎头发,真是难为妈妈了把“方圆百里”的头发都凑过来了,网友:试试宝宝假发啊!
Copyright © 2024 凯发护栏金属制品有限公司 版权所有